![]() ![]() ![]() ![]() ![]() ![]() ![]() ![]() ![]() ![]() ![]() |
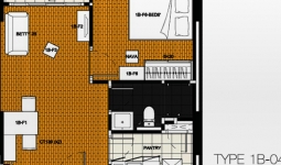
• ที่ตั้งโครงการ : ถนนรัชดาภิเษก แขวงดาวคะนอง เขตธนบุรี กรุงเทพมหานคร • ประเภทโครงการ : คอนโดมิเนียม สูง 8 ชั้น จำนวน 2 อาคาร • เนื้อที่โครงการ :2 ไร่ 1 งาน • ประเภทห้อง : Studio และ 1 ห้องนอน • พื้นที่ใช้สอย : 24-59 ตารางเมตร • จำนวนห้อง : 274 ยูนิต • ราคาเริ่มต้น : 1.6 ล้านบาท • เจ้าของโครงการ : บริษัท คาซ่าวิลล์ จำกัด |

